Casa indipendente in vendita

Altamura, Via Giulio Carcano
€ 360.000
7 locali 7 locali
154 Mq 154 Mq
2 bagni 2 bagni

Casa indipendente in vendita

Altamura, Via Giulio Carcano

Descrizione annuncio

In Via Ugo Foscolo proponiamo in vendita intero stabile angolare.

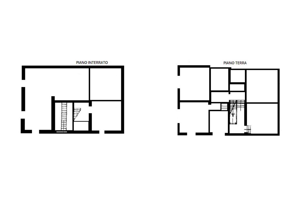
L’immobile è composto da:

Piano terra

due locali con ingresso da Via Carcano

due locali separati con ingresso da Via Ugo Foscolo

Primo piano

cinque vani con servizi.

Piano superiore

due soffitte con servizio

terrazzo angolare.

Piano interrato

cantina

garage

La posizione angolare e i doppi accessi indipendenti rendono l’immobile particolarmente interessante.

Soluzione versatile, ideale per investimento e per interventi di ristrutturazione o nuova edificazione

Per ulteriori informazioni potete contattarci o raggiungerci presso la nostra agenzia affiliata di Altamura viale Martiri 1799, che è presente sul territorio locale e garantisce ai suoi clienti professionalità e qualità dei servizi.
Il nostro staff altamente professionale è tutti i giorni a vostra completa disposizione per accogliervi e soddisfare le vostre esigenze immobiliari.

Mostra tutto

Nelle vicinanze

Trasporto pubblico Trasporto pubblico
Altamura FS
Altamura FS
1,9 Km
Altamura FAL
Altamura FAL
2,0 Km
Trasporto pubblico
130 m
FAL
FAL
130 m
Ricariche auto elettriche Ricariche auto elettriche
Eneldrive Palazzetto dello Sport "Baldassarra"
440 m
Eneldrive Comune di Altamura
1,0 Km
Enel PAN ADS Total Altamura
1,3 Km
Eneldrive Stazione di Altamura
2,0 Km
Scuole Scuole
Scuola Elementare "San Giovanni Bosco"
340 m
Scuola Media Statale Tommaso Fiore
360 m
I.I.S.S. "Michele De Nora"
1,2 Km
Farmacia Farmacia
dott. Tricarico
1,3 Km
Ridola
1,8 Km
Ospedali Ospedali
Ospedale Umberto I
1,4 Km
Supermercati Supermercati
MD
1,3 Km
MD Discount
2,2 Km
Negozi Negozi
Panificio del Lago
550 m
Panificio LaMaggiore
800 m
Panificio del Duomo
930 m
Di Gesu
1,1 Km
Ristoranti Ristoranti
Pizzeria Mercadante
1,6 Km
Mostra tutto

Caratteristiche

Rif.:
61190194
Piano:
Su più livelli di 2
Totale piani:
2
Balconi:
3
Terrazzi:
1
Camere da letto:
2
Mostra tutto
Prezzo Prezzo
€ 360.000
Rata mutuo Rata mutuo
€ 1.710 / mese
Spese annue Spese annue
€ 0
Proponi il tuo prezzoProponi il tuo prezzo

Classe Energetica

G
G
G
G
G
G
G
G
G
EP globale non rinnovabile:
123.00 kW h/m² anno
EP globale rinnovabile:
123.00 kW h/m² anno
EP invernale del fabbricato:
EP estiva del fabbricato:
Anno di costruzione:
1967
Riscaldamento:
Autonomo
Tipo impianto:
A radiatori
Tipo alimentazione:
Altro

Ti interessa visionare l'immobile?

Fissa un appuntamento  Fissa un appuntamento

Richiedi informazioni

Clicca su Leggi per aprire l'informativa
* Questi campi sono obbligatori

Calcola il tuo mutuo

Semplice e senza impegno
Anticipo

( % )
Mutuo

( % )

pochi semplici passi

inserisci i tuoi dati
Questionario completato
Grazie per aver richiesto un appuntamento senza impegno con un nostro Consulente del Credito e Assicurativo.

Hai inserito correttamente tutti i dati necessari e a breve riceverai una e-mail con un link da convalidare per inviare i tuoi dati.
Affiliato
Tecno Immobiliare Altilia Sas
Viale Dei Martiri del 1799, 21 70022 Altamura (BA)

Il nostro staff


  • Ilenia Calia
    Coordinatrice

  • Maria Teresa Ciliberti
    Collaboratrice

  • Giovanni Leo
    Responsabile
Viale Dei Martiri del 1799, 21 70022 Altamura (BA)
Zona: Altamura
Mostra su mappa
Affiliato
Tecno Immobiliare Altilia Sas
Viale Dei Martiri del 1799, 21 70022 Altamura (BA)

2026 Tecnocasa Franchising S.p.A. - P. IVA 08365160152 - Via Monte Bianco 60/A 20089 Rozzano (MI). Ogni agenzia ha un proprio titolare ed è autonoma. Privacy policy | Policy utilizzo | Cookie policy