Casa indipendente in vendita

Altamura, Via Maggio 1648
€ 300.000
Prezzo aggiornato
8 locali 8 locali
200 Mq 200 Mq
2 bagni 2 bagni

Casa indipendente in vendita

Altamura, Via Maggio 1648

Descrizione annuncio

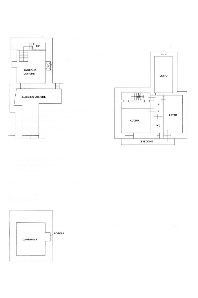
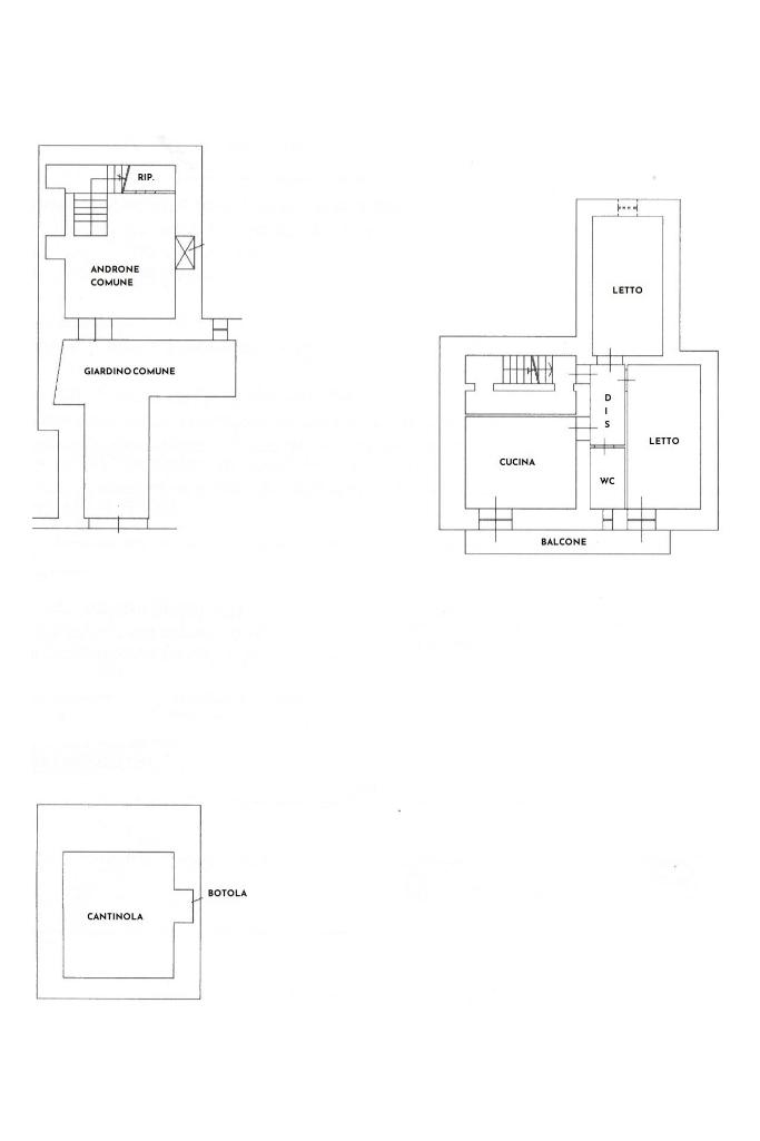
Tecnocasa Altamura, in via Maggio, propone in vendita un intero stabile indipendente composto da due unità immobiliari.

L’accesso alla proprietà avviene tramite un portone principale che si apre su un grazioso cortile di proprietà esclusiva, uno spazio riservato e accogliente che introduce all’androne delle scale, dal quale si accede ai piani superiori.

Il primo piano ospita una grande cucina abitabile, servita da balcone, due ampie camere matrimoniali e un bagno.

Salendo al secondo piano, troviamo un’ulteriore unità composta da ingresso, cucinino con soggiorno-pranzo, tre camere da letto e servizio.

Sovrastante ampio terrazzo con una meravigliosa vista panoramica della città.

A piano terra locale a deposito.

Pratica cantinola, perfetta come spazio deposito o locale di servizio, a piano interrato.

Per ulteriori informazioni potete contattarci o raggiungerci presso la nostra agenzia affiliata di Altamura viale Martiri 1799, che è presente sul territorio locale e garantisce ai suoi clienti professionalità e qualità dei servizi.
Il nostro staff altamente professionale è tutti i giorni a vostra completa disposizione per accogliervi e soddisfare le vostre esigenze immobiliari.

Mostra tutto

Nelle vicinanze

Trasporto pubblico Trasporto pubblico
Altamura FS
Altamura FS
1,1 Km
Altamura FAL
Altamura FAL
1,1 Km
FAL
FAL
140 m
Trasporto pubblico
220 m
Ricariche auto elettriche Ricariche auto elettriche
Eneldrive Comune di Altamura
160 m
Enel PAN ADS Total Altamura
960 m
Eneldrive Stazione di Altamura
1,2 Km
Eneldrive Palazzetto dello Sport "Baldassarra"
1,4 Km
Scuole Scuole
I.I.S.S. "Michele De Nora"
810 m
Scuola Elementare "San Giovanni Bosco"
1,2 Km
Scuola Media Statale Tommaso Fiore
1,4 Km
Farmacia Farmacia
dott. Tricarico
490 m
Ridola
1,7 Km
Ospedali Ospedali
Ospedale Umberto I
540 m
Supermercati Supermercati
MD
1,2 Km
MD Discount
1,2 Km
Negozi Negozi
Panificio del Duomo
200 m
Di Gesu
460 m
Panificio del Lago
790 m
Panificio LaMaggiore
1,3 Km
Ristoranti Ristoranti
Pizzeria Mercadante
1,5 Km
Mostra tutto

Caratteristiche

Rif.:
61166695
Piano:
1 di 2 (Piano su più livelli)
Posti auto:
1
Balconi:
2
Terrazzi:
1
Camere da letto:
5
Mostra tutto
Prezzo Prezzo
€ 300.000
Rata mutuo Rata mutuo
€ 1.425 / mese
Spese annue Spese annue
€ 0
Proponi il tuo prezzoProponi il tuo prezzo

Classe Energetica

G
G
G
G
G
G
G
G
G
EP globale non rinnovabile:
123.00 kW h/m² anno
EP globale rinnovabile:
123.00 kW h/m² anno
EP invernale del fabbricato:
EP estiva del fabbricato:
Anno di costruzione:
1960
Riscaldamento:
Assente

Prezzo ridotto di €1 (7%%)

Ti interessa visionare l'immobile?

Fissa un appuntamento  Fissa un appuntamento

Richiedi informazioni

Clicca su Leggi per aprire l'informativa
* Questi campi sono obbligatori

Calcola il tuo mutuo

Semplice e senza impegno
Anticipo

( % )
Mutuo

( % )

pochi semplici passi

inserisci i tuoi dati
Questionario completato
Grazie per aver richiesto un appuntamento senza impegno con un nostro Consulente del Credito e Assicurativo.

Hai inserito correttamente tutti i dati necessari e a breve riceverai una e-mail con un link da convalidare per inviare i tuoi dati.
Affiliato
Tecno Immobiliare Altilia Sas
Viale Dei Martiri del 1799, 21 70022 Altamura (BA)

Il nostro staff


  • Ilenia Calia
    Coordinatrice

  • Maria Teresa Ciliberti
    Collaboratrice

  • Giovanni Leo
    Responsabile
Viale Dei Martiri del 1799, 21 70022 Altamura (BA)
Zona: Altamura
Mostra su mappa
Affiliato
Tecno Immobiliare Altilia Sas
Viale Dei Martiri del 1799, 21 70022 Altamura (BA)

2026 Tecnocasa Franchising S.p.A. - P. IVA 08365160152 - Via Monte Bianco 60/A 20089 Rozzano (MI). Ogni agenzia ha un proprio titolare ed è autonoma. Privacy policy | Policy utilizzo | Cookie policy