Rustico in vendita

Altamura, Strada Provinciale
€ 55.000
7 locali 7 locali
210 Mq 210 Mq

Rustico in vendita

Altamura, Strada Provinciale

Descrizione annuncio

Tecnocasa Altamura propone in vendita un intero stabile allo stato rustico, immerso nella natura e con una fantastica vista panoramica sui campi verdi, a soli 6 km dalla città.

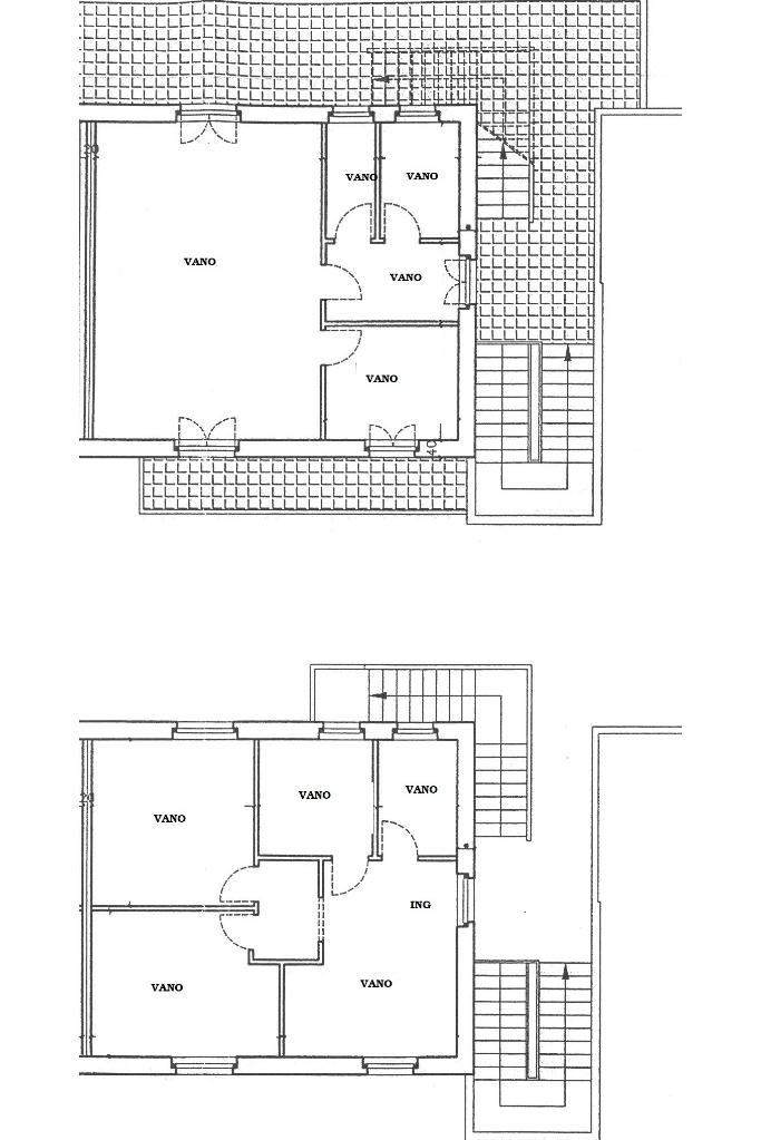
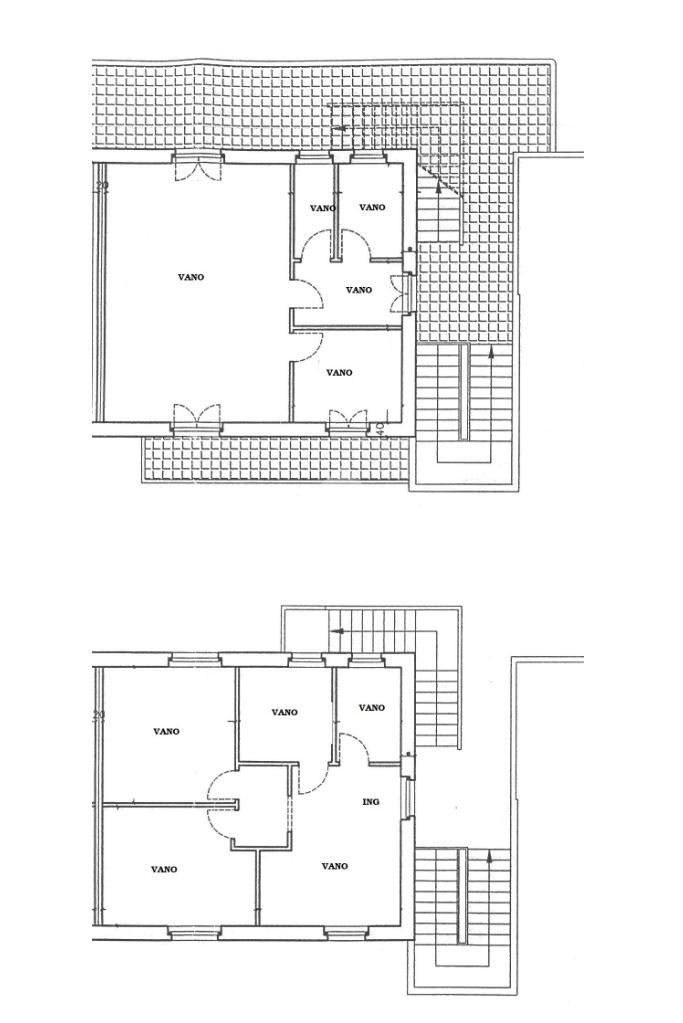
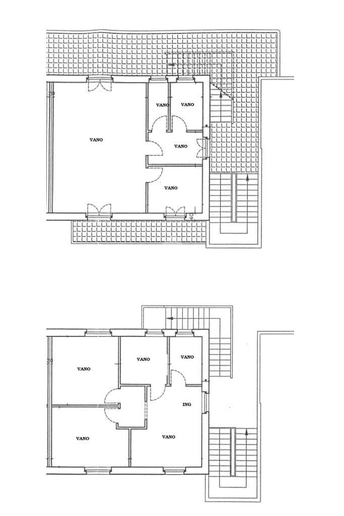
L’immobile si sviluppa su tre livelli, ciascuno di circa 70 mq:

Piano terra: ampio locale, ideale da rifinire come garage, tavernetta o deposito.

Primo piano: superficie da suddividere e personalizzare secondo le proprie esigenze abitative.

Secondo piano: ulteriore livello di 70 mq, anch’esso personalizzabile.

La soluzione è perfetta per chi desidera vivere in tranquillità, a contatto con la natura, senza rinunciare alla vicinanza al centro abitato.

Per ulteriori informazioni potete contattarci o raggiungerci presso la nostra agenzia affiliata di Altamura viale Martiri 1799, che è presente sul territorio locale e garantisce ai suoi clienti professionalità e qualità dei servizi.
Il nostro staff altamente professionale è tutti i giorni a vostra completa disposizione per accogliervi e soddisfare le vostre esigenze immobiliari.

Mostra tutto

Nelle vicinanze

Trasporto pubblico Trasporto pubblico
Altamura FS
Altamura FS
2,9 Km
Altamura FAL
Altamura FAL
3,0 Km
Trasporto pubblico
510 m
FAL
FAL
1,5 Km
Ricariche auto elettriche Ricariche auto elettriche
Eneldrive Palazzetto dello Sport "Baldassarra"
1,8 Km
Eneldrive Comune di Altamura
2,0 Km
Enel PAN ADS Total Altamura
2,8 Km
Scuole Scuole
I.I.S.S. "Michele De Nora"
1,0 Km
Scuola Elementare "San Giovanni Bosco"
1,8 Km
Scuola Media Statale Tommaso Fiore
2,3 Km
Farmacia Farmacia
dott. Tricarico
2,4 Km
Ospedali Ospedali
Ospedale Umberto I
2,4 Km
Supermercati Supermercati
MD
780 m
MD Discount
1,6 Km
Negozi Negozi
Panificio LaMaggiore
1,3 Km
Panificio del Lago
1,5 Km
Panificio del Duomo
2,0 Km
Di Gesu
2,4 Km
Mostra tutto

Caratteristiche

Rif.:
61126537
Piano:
2 di 3 (Piano su più livelli)
Box:
1
Arredamento:
Assente
Condizionamento:
Assente
Ascensore:
No
Mostra tutto
Prezzo Prezzo
€ 55.000
Rata mutuo Rata mutuo
€ 259 / mese
Spese annue Spese annue
€ 0
Proponi il tuo prezzoProponi il tuo prezzo

Classe Energetica

Questo immobile è esente da classe energetica
Anno di costruzione:
2004
Riscaldamento:
Assente

Ti interessa visionare l'immobile?

Fissa un appuntamento  Fissa un appuntamento

Richiedi informazioni

Clicca su Leggi per aprire l'informativa
* Questi campi sono obbligatori

Calcola il tuo mutuo

Semplice e senza impegno
Anticipo

( % )
Mutuo

( % )

pochi semplici passi

inserisci i tuoi dati
Questionario completato
Grazie per aver richiesto un appuntamento senza impegno con un nostro Consulente del Credito e Assicurativo.

Hai inserito correttamente tutti i dati necessari e a breve riceverai una e-mail con un link da convalidare per inviare i tuoi dati.
Affiliato
Tecno Immobiliare Altilia Sas
Viale Dei Martiri del 1799, 21 70022 Altamura (BA)

Il nostro staff


  • Ilenia Calia
    Coordinatrice

  • Maria Teresa Ciliberti
    Collaboratrice

  • Graziana Genco
    Collaboratrice

  • Giovanni Leo
    Responsabile

  • Davide Scalera
    Affiliato
Viale Dei Martiri del 1799, 21 70022 Altamura (BA)
Zona: Altamura
Mostra su mappa
Affiliato
Tecno Immobiliare Altilia Sas
Viale Dei Martiri del 1799, 21 70022 Altamura (BA)

2025 Tecnocasa Franchising S.p.A. - P. IVA 08365160152 - Via Monte Bianco 60/A 20089 Rozzano (MI). Ogni agenzia ha un proprio titolare ed è autonoma. Privacy policy | Policy utilizzo | Cookie policy